Thiết kế nhà 3 tầng 7x12m
Mô tả
Các mẫu thiết kế nhà 3 tầng 7x12m đều mang một vẻ đẹp riêng. Cho dù ngôi nhà mang phong cách hiện đại hay cổ điển, đều mang đến những giá trị thẩm mỹ của nó. Tuy nhiên, với vẻ khang trang về mặt ngoại thất, thì nội thất cũng phải đáp ứng được công năng cũng như không gian sống lý tưởng cho gia chủ.

Hãy cùng chúng tôi tìm hiểu về ngôi nhà độc đáo của anh Tâm qua bài viết dưới đây nhé. Hy vọng các bạn sẽ thích.
Thông tin mẫu thiết kế nhà 3 tầng 7x12m
Chủ đầu tư: Anh Tâm
Địa chỉ xây dựng: Bình Phước
Diện tích xây dựng: 7x12m
Quy mô: 1 trệt 2 lầu
Phối cảnh mẫu thiết kế nhà 3 tầng 7x12m
Mẫu thiết kế nhà 7x12m 3 tầng hiện đại là một trong những mẫu nhà được xây dựng khá phổ biến ở các thành phố lớn. Bởi vẻ ngoài đẹp, cùng cách tối giản các chi tiết rườm rà. Thêm vào đó, công trình còn sử dụng các vật liệu hiện đại, đã mang đến cho không gian ngoại thất ngôi nhà thêm khang trang.

Công trình nhà phố với mặt tiền rộng rãi, đủ để kiến trúc sư có thể hoàn thiện mặt bằng mẫu nhà phố 3 tầng một cách khoa học và cũng như thoải mái lên ý tưởng sáng tạo. Ngoài ra, cách thiết kế ấn tượng bởi các các mảng tường vuông, dọc ghép lại với nhau cùng cách phối màu tương phản, đã tạo hiệu ứng độc đáo cho công trình.
Hệ thống khung sắt, kính trong suốt giúp ngôi nhà thêm chắc chắn và đón được nhiều ánh sáng vào không gian sống. Một vài tiểu cảnh trước ban công cũng góp phần mang thiên nhiên lại gần hơn, tạo cảm giác thông thoáng và bớt ngột ngạt hơn.
Bản vẽ công năng thiết kế nhà 3 tầng 7x12m
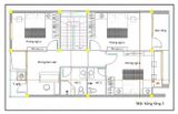
- Mặt bằng tầng 1 gồm: Gara, phòng khách, Phòng bếp + ăn, phòng ngủ, 1 toilet.

Mặt bằng mẫu nhà 7x12m thiết kế chia diện tích làm hai . Một bên làm khu vực gara và phòng ngủ, cùng cầu thang thông tầng. Bên còn lại là diện tích dành cho phòng khách, bếp và ăn kết hợp. Sau phòng bếp là nhà vệ sinh chung, sân sau để lấy lượng không khí đối lưu vào nhà tốt hơn.
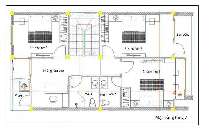
- Mặt bằng tầng 2 gồm: phòng làm việc, 3 phòng ngủ, 2 toilet và 1 phòng giặt.

Diện tích ở tầng 2 được chia đều cho 3 phòng ngủ và phòng làm việc đầy tiện nghi. Nhưng phòng ngủ 4 được ưu tiên bố trí thêm nhà vệ sinh và phòng làm việc cũng thiết kế toilet chung cho cả tầng. Cuối cùng là phòng giặt khép kín.
- Mặt bằng tầng 3 gồm: Sân thượng, sân sau, phòng thờ, kho, phòng giặt.

Từ cầu thang thông tầng đi lên là phòng giặt tiện nghi. Hai bên là sân phơi thoáng mát và phòng thờ được bố trí hướng ra sân thượng. Bên cạnh là là nhà kho rộng rãi.
Khám phá nội thất mẫu thiết kế nhà 3 tầng 7x12m
Việc bố trí nội thất trong không gian sống không chỉ sắp xếp cho phù hợp diện tích, mà còn phải phù hợp gu thẩm mỹ , cũng như sở thích của những các thành viên trong gia đình.
Nội thất phòng khách

Phòng khách mẫu thiết kế nhà 3 tầng 7x12m gây ấn tượng với bộ sofa nệm xanh êm ái, cùng những bông hoa sắt sơn vàng đẹp mắt trên mảng tường trắng, mang đến sự thoải mái và tinh tế cho không gian tiếp khách. Vách ngăn hai khu vực phòng bếp và khách được trang trí tranh ghép bông hoa góp phần tạo thêm thẩm mỹ cho nơi đây.
Nội thất phòng bếp + ăn

Phòng bếp và ăn được thiết kế kết hợp tạo nhiều diện tích rộng rãi, thuận tiện cho việc sinh hoạt gia đình. Bộ bàn ghế đơn giản kết hợp với đèn trang trí hiện đại, mang đến sự sang trọng cho khu vực này. Sàn nhà được lót gạch trắng có vân mây, tạo cảm giác mát mẻ và sạch sẽ hơn. Bên cạnh đó, cũng giúp việc vệ sinh trở nên dễ dàng hơn.
Nội thất phòng ngủ

Không gian phòng ngủ gia chủ gây ấn tượng với mảng tường được gián giấy dán tường đen trắng cùng bức tranh nghệ thuật cùng tông màu, mang đến sự độc đáo cho căn phòng. Nội thất gỗ mộc mạc mang đến cảm giác mát mẻ và gần gũi với thiên nhiên hơn.

Phòng ngủ cậu con trai rộng rãi với cách bố trí nội thất thông minh. Vẫn là tông màu trầm ấm, mang đến cảm giác ấm áp cho không gian nghỉ ngơi. Bàn làm việc kết hợp kệ sách cùng tủ quần áo, đã giúp diện tích phòng thêm nhiều khoảng trống thuận tiện cho việc sinh hoạt.

Phòng ngủ cô gái được sử dụng tông màu tím bắt mắt, cùng họa tiết trẻ trung mang đến sự đáng yêu cho căn phòng của bé . Bàn trang điểm treo kết hợp với đèn chiếu sáng giúp khu vực này thêm nhiều ánh sáng, giúp cô gái trang điểm thêm đẹp hơn. Máy điều hòa mang đến sự mát mẻ cho căn phòng khi thời tiết oi bức.
Chi phí thiết kế, xây dựng mẫu nhà 3 tầng 7x12m
Bạn đang lên kế hoạch xây dựng ngôi nhà cho riêng mình, nhưng không biết kinh phí xây dựng như thế nào. Hiểu được điều đó Bitacons sẽ đưa ra mức chi phí dự toán cho thiết kế cũng như xây dựng của mẫu nhà mà chúng tôi giới thiệu trên đây, để các bạn dễ dàng hình dung nhé.
- Chi phí thiết kế là: 50 triệu đồng
- Chi phí xây dựng phần thô là: 1 tỉ 053 triệu đồng
- Chi phí xây dựng hoàn thiện là: 1 tỉ 596 triệu đồng
Tạm kết
Mẫu thiết kế nhà 3 tầng 7x12m mà chúng tôi đã chia sẽ, hy vong sẽ là tư liệu tham khảo bổ ích cho ngôi nhà mới của các bạn nhé. Nếu còn băn khoăn chưa biết lựa chọn mẫu nào thì hãy liên hệ vớiBitacons qua số hotline 0936 538 738 để được tư vấn miễn phí.
Chính sách bảo mật
a. Mục đích thu thập thông tin cá nhân
Việc thu thập dữ liệu trên website bao gồm
- Họ tên
- Email
- Số điện thoại
Mục đích: để chúng tôi liên hệ xác nhận khi khách hàng để lại thông tin trên website nhằm đảm bảo quyền lợi cho cho khách hàng.
Khách hàng sẽ tự chịu trách nhiệm về bảo mật và lưu giữ mọi hoạt động sử dụng dịch vụ dưới tên đăng ký, mật khẩu và email của mình. Ngoài ra, khách hàng có trách nhiệm thông báo kịp thời cho Bitacons về những hành vi sử dụng trái phép, lạm dụng, vi phạm bảo mật thông tin của bên thứ ba để có biện pháp giải quyết phù hợp.
b. Phạm vi sử dụng thông tin
Thông tin cá nhân thu thập được sẽ chỉ được sử dụng trong nội bộ Công ty. Chúng tôi có thể chia sẻ tên và địa chỉ của quý khách cho dịch vụ chuyển phát nhanh hoặc nhà cung cấp của chúng tôi để có thể giao hàng cho quý khách.
Bitacons sử dụng thông tin khách hàng cung cấp để:
- Cung cấp các dịch vụ liên quan đến khách hàng.
- Gửi các thông báo về các hoạt động trao đổi thông tin giữa khách hàng và Bitacons
- Ngăn ngừa các hoạt động phá hoại tài khoản người dùng của khách hàng hoặc các hoạt động giả mạo khách hàng
- Liên lạc và giải quyết với khách hàng trong những trường hợp đặc biệt
- Trong trường hợp có yêu cầu của pháp luật có thẩm quyền thì Bitacons có trách nhiệm hợp tác cung cấp thông tin cá nhân khách hàng bao gồm: Viện kiểm sát, tòa án, cơ quan công an điều tra liên quan đến hành vi vi phạm pháp luật nào đó của khách hàng. Ngoài ra, không ai có quyền xâm phạm vào thông tin cá nhân của khách hàng.
c. Thời gian lưu trữ thông tin
Bitacons sẽ lưu trữ các thông tin cá nhân do khách hàng cung cấp trên hệ thống nội bộ của chúng tôi trong quá trình cung cấp dịch vụ cho khách hàng hoặc cho đến khi hoàn thành mục đích thu thập thông tin hoặc khi khách hàng có yêu cầu hủy các thông tin đã cung cấp.
d. Những người hoặc tổ chức có thể được tiếp cận với thông tin đó
Những thông tin cá nhân trên website được phép tiếp cận bởi:
- Ban quản trị website
- Khách hàng sở hữu thông tin cá nhân đó
- Các cơ quan Pháp luật Việt Nam có thẩm quyền (khi được yêu cầu)
e. Địa chỉ của đơn vị thu thập và quản lý thông tin
Văn phòng Bitacons:
- Địa chỉ: 5 đường số 4, khu nhà ở Hưng Phú, KP1, phường Tam Phú, TP.Thủ Đức, TP.Hồ Chí Minh
- Điện thoại: 0934.963.668
- Email: duan@bitacons.com.vn
f. Phương tiện và công cụ để người dùng tiếp cận và chỉnh sửa dữ liệu cá nhân của mình
Khách hàng có thể thực hiện các quyền tiếp cận và chỉnh sửa dữ liệu cá nhân bằng cách truy cập vào mục tài khoản trên website theo hướng dẫn dưới đây:
https://bitacons.com.vn/pages/lien-he
Hoặc liên hệ với Bitacons để được hỗ trợ theo hotline: 0934.963.668